Beware of imitations. As an authorised distributor of HOOPLY products, we only sell genuine products.
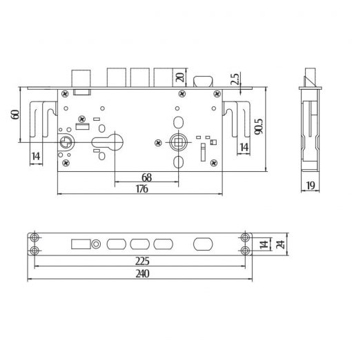
This lock is compatible as a retro fit / upgrade for cheaper Chinese imported doors featuring a lock using the same footprint.
Also compatible with container personnel doors and UK made doors with a multi point locking mechanism.
















